空と海を見渡す高台に佇む、「AMAO VILLA 熱海」
伊豆山の豊かな山間に、周囲の喧騒から距離を置くように佇む一棟貸切のヴィラがあります。
木々の気配に包まれながら過ごすうちに、都会の時間感覚がゆっくりとほどけていく場所です。
斜面に張り出すように設えられた空中テラスからは、相模湾に浮かぶ大島までを望むことができます。
誰の視線にも遮られない丘の上で、自然とともに過ごす滞在が静かに始まる場所、AMAO VILLA 熱海をご紹介します。

静寂な山間に息づく隠れ家
熱海駅から車で15分、伊豆山の別荘地で周囲に民家が一切ない贅沢なプライベート空間です。雑踏とは無縁の静けさに包まれ、耳に届くのは風に揺れる木々や遠くの鳥の声だけです。
昼は眼下に広がる海と空との一体感を味わい、夜は条件が良ければ満天の星を仰ぐこともできます。海上に花火が上がる季節には、丘の上から彩り豊かな光の競演を望むこともできるでしょう。誰にも邪魔されることのない静寂と開放感の中、非日常のひとときを過ごせます。


洗練されたデザイン空間
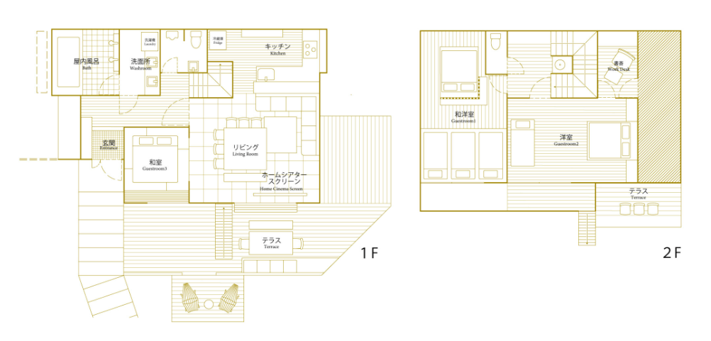
2022年12月、有名デザイナーの手によって館内は洗練された空間へとリフォームされました。木の温もりとモダンな意匠が調和する広々としたリビングには120インチの大型スクリーンと5.1chサラウンドスピーカーが備わり、映画館さながらの迫力で映像や音楽を楽しめます。
和洋折衷の趣を感じる2階の寝室や畳敷きの和室など、最大が11名以上がゆったり宿泊できる間取りでグループや家族旅行にも十分なゆとりがあります。
清潔でふかふかな寝具や余裕のある収納、調理器具から食器類まで細やかに揃えられたキッチン設備も評判です。滞在中はまるで理想の別荘に暮らすような心地よさを味わえるでしょう。細部まで配慮が行き届いた洗練の空間に身を置き、豊かな寛ぎの時間をお過ごしください。


自然を望む空中テラス
静かな山の気配と海からの風を全身で感じられるテラススペース。遮るもののない眺望が広がり、森と海と空との一体感を味わえます。ウッドデッキの設計にも工夫が凝らされ、山並みと海原を背景にゆったりと腰掛ければ、まるで空に浮かんでいるかのような解放感です。
晴れた朝には鳥のさえずりをBGMに、用意された豆を挽いて淹れたてのコーヒーを味わってみてはいかがでしょうか。夜には遠く瞬く街明かりや星空を眺めながら、大切な人と語らう贅沢なひとときが待っています。テラスには海外製のガス式グリルが備え付けられ、プライベートな空間でBBQも存分に楽しめます。心地よい風と雄大なパノラマを前に、日常を忘れて開放的な時間になるでしょう。


贅沢な浴室で癒しの時間
木材の質感とシックなタイルが調和する貸切浴室は、日常の喧騒を忘れさせる落ち着いた雰囲気です。広々とした贅沢な石張りの浴槽にゆっくりと身を沈めれば、窓の外に設えられた伊豆の流木や緑が趣ある坪庭となって目に映ります。湯船に揺れる光と影を眺めながら深呼吸すれば、心身ともにじんわりと解きほぐされていくのを感じることでしょう。
浴室や脱衣所にはシャンプーやタオル類はもちろん、ドライヤーや基礎的なアメニティも一通り揃っており手ぶらでも安心です。旅の締めくくりに静寂の中で湯に浸かり、一日の疲れを癒してリセットする至福のバスタイムをお過ごしください。

滞在に余白を生む、複数の居場所
このヴィラには、一つの過ごし方に限定されない、複数の居場所が用意されています。2階には、和洋の要素を取り入れた空間と洋室が配され、それぞれが独立した休息の場として機能します。
畳のある和室では足を伸ばしてくつろぎ、洋室ではベッドに身を委ね、その日の気分や時間帯に合わせて使い分けることができます。
また、書斎として使えるスペースも設えられており、景色から少し距離を取り、静かに思考を整えたい時間にお使いください。
集まる場所、離れる場所、こもる場所。複数人での滞在であっても、それぞれが無理なく自分の居場所を見つけられる構成になってます。人数や関係性を選ばず、滞在の自由度を高めてくれる空間。思い思いの時間をお過ごしください。




海と空にひらかれた眺め
視線の先に広がるのは、相模湾とその向こうに続く空の境界線。建物の配置と高さが計算され、風景が遮られることなく、そのまま滞在の中に入り込んできます。時間帯によって表情を変える海の色。雲の動きに合わせて移ろう光。朝の澄んだ空気、昼の明るさ、夕暮れの陰影。一日の流れが、そのまま景色として感じ取れる環境です。
景色を「見る」ための場所ではなく、景色の中に身を置くような感覚。食事をしながらでも、会話の合間でも、特別な行為を必要とせず、自然に風景が寄り添います。
熱海という土地が持つ海と空の広がりを滞在が終わりに近づくにつれ、この眺めが記憶として静かに残っていきます。
風景とともに流れる時間を味わいながら、この場所ならではのひとときをお過ごしください。



「Executive Club by GMO賃貸DX」予約特典
■特典内容:
宿泊料金から3,000円の割引
■ご予約方法:
以下「予約する」ボタンよりお進みいただき、公式サイト予約画面にてご予約ください。
必ず、予約時に「GMO賃貸DX経由」と備考欄に記載ください。

